- Woonoppervlakte
- Circa 181 m²
- Perceeloppervlakte
- Circa 494 m²
- Bouwjaar
- Gebouwd in 2024
- Aantal kamers
- 5 kamers (4 slaapkamers)
In een rustige, kindvriendelijke en ruim opgezette woonwijk ligt deze in 2024 gebouwde luxe vrijstaande woning.
De woning combineert ruimte, comfort en duurzaamheid, heeft royale woonvertrekken, veel lichtinval en een luxe, hoogwaardige afwerking. Levensloopbestendig wonen is uitstekend mogelijk dankzij de slaapkamer en badkamer op de begane grond. Een badkamer ingericht met inloopdouche, ligbad, wastafelmeubel en toilet. Daarnaast bevindt zich in de hal een speraat toilet.
Bij binnenkomst valt direct de hoogwaardige afwerking op. De leefruimte is licht en ruim met mooie openslaande deuren naar de tuin en veel raampartijen die zorgen voor natuurlijk licht. Het geheel staat in open verbinding met de eethoek en keuken. Een luxe en compleet uitgevoerde keuken met een inductie kookplaat, oven, vaatwasser, grote koelkast, vriezer en Quooker.
De gehele begane grond en ook de eerste verdieping zijn voorzien van vloerverwarming, wat bijdraagt aan een aangenaam en gelijkmatig binnenklimaat. De woning is volledig gas-loos en uitgerust met een full-electric warmtepomp, 16 zonnepanelen en een warmte-terugwin installatie, wat resulteert in een energielabel A+++. In combinatie met de hardhouten kozijnen met HR++ beglazing zorgt dit voor een energiezuinige en comfortabele woonomgeving.
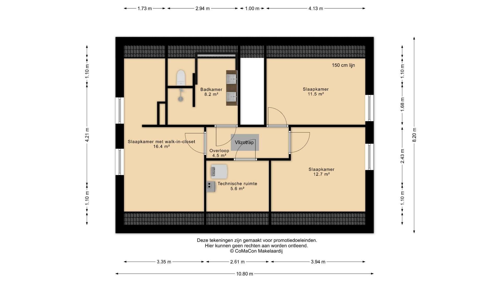
Op de eerste verdieping bevinden zich drie volwaardige slaapkamers en een tweede ruime badkamer, ingericht met een inloopdouche, dubbele wastafel en toilet. Op deze verdieping bevindt zich ook de technische ruimte met opstelling van het witgoed. Daarnaast is er een ruime zolder aanwezig, bereikbaar via een vlizotrap, geschikt voor opslag.
De onder architectuur aangelegde tuin rondom de woning biedt veel privacy. Hier vindt u onder meer een terrasoverkapping, een volledig geïsoleerd tuinhuis en een grondwaterput ten behoeve van de beregening van de tuin. Bij de oprit zijn voorbereidingen getroffen voor het plaatsen van een laadpaal.
HEGELSOM
Hegelsom is een dorp met ongeveer 1.500 inwoners, landelijk gelegen, met alle benodigde voorzieningen op korte afstand. In het centrum van Hegelsom is een Kind-centrum ‘Onder de Linde’, met basisonderwijs, dagopvang, peuteropvang en buitenschoolse opvang. Het dorp heeft een actief verenigingsleven. Hegelsom is gunstig gelegen aan de N277, met goede aansluiting naar omliggende dorpen en steden zoals Horst, Venray en Venlo. De snelwegen A73 en A67 zijn binnen enkele minuten bereikbaar. Het station Horst-Sevenum ligt op ongeveer 1,6 kilometer van Hegelsom en zorgt voor goede treinverbindingen richting Venlo en Eindhoven.
KENMERKEN / BIJZONDERHEDEN:
• vraagprijs € 814.000
• levensloopbestendig, badkamer en slaapkamer op begane grond
• 1e verdieping 3 slaapkamers en 2e badkamer
• gas-loos
• full-electric warmtepomp
• 16 zonnepanelen
• vloerverwarming op begane grond en 1e verdieping
• energielabel A+++
• hoogwaardige afwerking
De informatie in deze publicatie is met de nodige zorgvuldigheid samengesteld. Wij aanvaarden geen aansprakelijkheid voor eventuele onvolledigheid, onjuistheid of anderszins en de daaraan gelieerde gevolgen. De tekeningen met vermelde afmetingen zijn gemaakt voor promotiedoeleinden. Hier kunnen geen rechten aan ontleend worden. Lees de volledige omschrijving
Overdracht
- Vraagprijs
- € 814.000 k.k.
- Status
- Beschikbaar
- Aanvaarding
- In overleg
Bouw
- Object type
- Eengezinswoning, vrijstaande woning
- Soort bouw
- Bestaande bouw
- Bouwjaar
- 2024
- Soort dak
- Zadeldak bedekt met pannen
Oppervlakte en inhoud
- Woonoppervlakte
- 181 m²
- Perceeloppervlakte
- 494 m²
- Inhoud
- 686 m³
- Externe bergruimte
- 9 m²
Indeling
- Aantal kamers
- 5 kamers (4 slaapkamers)
- Aantal badkamers
- 2 badkamers en 1 apart toilet
- Badkamervoorzieningen
- 2 dubbele wastafels, 2 inloopdouches, vloerverwarming, 2 wastafelmeubels, en ligbad
- Aantal woonlagen
- 2 woonlagen en een zolder
- Voorzieningen
- Balansventilatie, glasvezelkabel, TV kabel, en zonnepanelen
Energie
- Energielabel
- A
- Isolatie
- Hr-glas en volledig geïsoleerd
- Verwarming
- Gehele vloerverwarming, warmte terugwininstallatie en warmtepomp
- Warm water
- Elektrische boiler
Buitenruimte
- Ligging
- In woonwijk
- Tuin
- Achtertuin
- Afmetingen achtertuin
- 248 m² (12,40 meter diep en 20,00 meter breed)
- ligging tuin
- Gelegen op het noorden bereikbaar via achterom
Bergruimte
- Schuur / berging
- Vrijstaande houten berging
- Voorzieningen
- Elektra en stromend water
Garage
- Soort garage
- Parkeerplaats
Parkeergelegenheid
- Soort parkeergelegenheid
- Op eigen terrein en openbaar parkeren
Energieverbruik in Hegelsom
Energielabel deze woning
Energielabel A
Publicatie energielabel:
Stroomverbruik per jaar
(Gemiddelde vrijstaande woning in Hegelsom)
Gasverbruik per jaar
(Gemiddelde vrijstaande woning in Hegelsom)
* Cijfers zijn afkomstig van het CBS en bedoeld als indicatie en kunnen verschillen voor deze woning
Indicatie hypotheeklasten
Eigen inleg:
Spaargeld / overwaarde
Rente:
Laagste 10-jaars rente
Laagste 10-jaars rente
2,78% - Centraal Beheer - NHG
3,04% - Centraal Beheer - 80%
Laagste 20-jaars rente
3,29% - Centraal Beheer - NHG
3,52% - Centraal Beheer - 80%
Laagste 30-jaars rente
3,41% - Centraal Beheer - NHG
3,7% - Argenta - 80%
Hypotheek:
Bruto maandlasten: € 0 p/m
Netto maandlasten: € 0 p/m
Hoe berekenen we dit?
Het rentepercentage is gebaseerd op de laagste 10 jaars vaste rente voor één hypotheekdeel. De vermelde rente (3.04% zonder NHG) is gecontroleerd op 27-04-2026. Deze berekening is gebaseerd op een annuïteitenhypotheek die volledig wordt afgelost, waarbij de maandlasten gedurende de gehele looptijd gelijk blijven. De werkelijke rente en netto maandlasten kunnen variëren, afhankelijk van uw persoonlijke situatie en de hypotheekverstrekker. Raadpleeg een financieel adviseur voor een nauwkeurige berekening en advies. Aan deze berekening kunnen geen rechten worden ontleend; het dient enkel als indicatie.
Documentatie
Kadastrale kaart
Leefomgeving
Brochure
Plattegronden PDF
WOZ waarderapport
BAG uittreksel
Bezichtiging
Bod uitbrengen
Waardebepaling
Zoekopdracht
Alles downloaden
Zonnegrenzen bekijken
Inwoners in Hegelsom
Cijfers voor postcodegebied 5963
- Totaal aantal inwoners
- 1955 inwoners
- Mannen
- 51%
- Vrouwen
- 49%
Inwoners in Hegelsom
Cijfers voor postcodegebied 5963
- tot 15 jaar
- 15%
- 15 tot 25 jaar
- 13%
- 25 tot 35 jaar
- 23%
- 45 tot 65 jaar
- 31%
- 65 en ouder
- 18%
Huishoudens in Hegelsom
Cijfers voor postcodegebied 5963
- Eenpersoons zonder kinderen
- 24%
- Meerpersoons zonder kinderen
- 37%
- Huishoudens zonder kinderen
- 61%
Huishoudens in Hegelsom
Cijfers voor postcodegebied 5963
- Huishoudens met één kind
- 4%
- Huishoudens met meerdere kinderen
- 35%
- Huishoudens met kinderen
- 39%
Woningen in Hegelsom
Cijfers voor postcodegebied 5963
- Woningen voor 1945
- 15%
- Woningen tussen 1945 en 1965
- 19%
- Woningen tussen 1965 en 1975
- 15%
- Woningen tussen 1975 en 1985
- 16%
- Woningen tussen 1985 en 1995
- 13%
Woningen in Hegelsom
Cijfers voor postcodegebied 5963
- Woningen tussen 1995 en 2005
- 7%
- Woningen tussen 2005 en 2015
- 10%
- Woningen na 2015
- 4%
- Huurwoningen
- 20%
- Koopwoningen
- 80%
Overige in Hegelsom
Cijfers voor postcodegebied 5963
- Gemiddelde WOZ waarde
- € 280.000,-
- Personen onder de 65 met uitkering
- Niet beschikbaar
Overige in Hegelsom
Cijfers voor postcodegebied 5963
- Adressen per km²
- 255
- Stedelijkheid (schaal 1 op 5)
- 20%
CoMaCon Makelaardij
Indien u vragen heeft of u wilt een bezichtiging inplannen, dan kunt u gebruik maken van het formulier hiernaast. Er zal daarna op korte termijn contact met u worden opgenomen.
Contact opnemen
Comacon Makelaardij
Bij Comacon Makelaardij krijgt u meer dan alleen een makelaar. Dankzij onze unieke combinatie van vastgoedervaring en bouwkundige achtergrond, bieden wij een totaalpakket dat verder gaat dan de standaard dienstverlening.
Wat ons onderscheidt:
Waardebepaling zonder kosten
We starten met een gratis inschatting van de waarde van uw woning – zonder verplichtingen.
Persoonlijke benadering en rust in het proces
Uw wensen staan centraal. We nemen uitgebreid de tijd om uw situatie te begrijpen en begeleiden u op een ontspannen manier.
Strategisch aan- en verkoopplan
Geen standaard aanpak, maar een zorgvuldig op maat gemaakte strategie om het maximale uit uw transactie te halen.
Eerlijkheid als kernwaarde
Wij werken transparant en hechten sterk aan betrouwbaarheid en ethisch handelen.
Kennis van zaken
U kunt rekenen op professionele begeleiding van een ervaren expert die met u meedenkt.
Gedetailleerde werkwijze
Onze processen zijn verfijnd tot in de kleinste details, zodat u profiteert van een gestroomlijnde afhandeling.
Zorg voor de koper
Wij vinden het belangrijk dat ook de koper goed wordt begeleid, zodat de gehele transactie soepel en verantwoord verloopt.
Grondige bezichtigingen
Onze rondleidingen zijn helder, informatief en afgestemd op de behoeften van potentiële kopers.
Passende courtage
Onze tarieven worden afgestemd op het object, zodat u een eerlijke prijs betaalt voor onze dienstverlening.
Opstartkosten
Naast de courtage rekenen wij opstartkosten voor de voorbereidingen en presentatie van uw woning.
Aankoopbegeleiding cadeau bij verkoopopdracht
Geeft u ons het vertrouwen voor de verkoop? Dan helpen wij u kosteloos bij het kopen van een nieuwe woning.
Ontdek het verschil van Comacon Makelaardij
Wij zetten ons volledig in voor het beste resultaat bij uw aan- of verkoop. Neem vrijblijvend contact met ons op en ervaar zelf onze betrokken en professionele aanpak.
Uw succes is ons uitgangspunt.
Nieuwste reviews
-
Henk Thijssen
Vakkundige man weet waar hij over praat, had ons app zeer snel verkocht , van harte aanbevolen, nogmaals dank voor de prettige en speciale a...
-
Dionisiusstraat 15
Geweldige makelaar neemt veel tijd en een goede uitleg prettig in omgang zeerAan te bevelen als wij een makelaar nodig hebben wordt het weer...
-
Mariushof 26
Bij de aankoop van onze nieuwe woning stond Theo nog aan de andere kant, bij de verkopende partij. Wij hebben het contact als kopers al dusd...